-
聯軸器(qi)膜片
-
膜片聯(lian)軸器(qi)
-
膜盤聯軸器
-
蛇形(xing)彈(dan)簧(huang)聯軸(zhou)器(qi)
-
鼓(gu)型齒式聯軸(zhou)器(qi)
-
滾(gun)珠聯(lian)軸器(qi)
-
星(xing)形(xing)彈(dan)性(xing)聯(lian)軸(zhou)器(qi)
-
梅(mei)花(hua)形(xing)彈性(xing)聯(lian)軸(zhou)器
-
彈性(xing)套(tao)柱銷(xiao)聯軸(zhou)器
-
LK型(xing)彈(dan)性塊聯軸器
-
彈性(xing)柱銷(xiao)聯軸(zhou)器
-
徑(jing)向彈(dan)性(xing)柱銷(xiao)聯軸(zhou)器
-
彈(dan)性(xing)柱銷(xiao)齒式聯軸(zhou)器(qi)
-
泵用聯軸器
-
滾(gun)子鏈(lian)聯軸(zhou)器
-
剛(gang)性(xing)聯(lian)軸器
-
滑(hua)塊(kuai)聯(lian)軸器(qi)
-
輪胎(tai)聯軸(zhou)器
-
萬(wan)向軸(zhou)聯(lian)軸(zhou)器(qi)
-
夾殼聯軸(zhou)器(qi)
-
定(ding)做異型聯(lian)軸(zhou)器
-
聯(lian)軸(zhou)器配件(jian)
-
聯(lian)軸(zhou)器(qi)原材(cai)料
-
脹緊套(tao)
-
皮(pi)帶(dai)輪

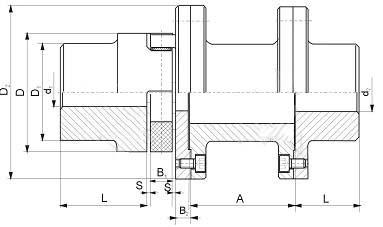
LXT接(jie)中(zhong)間套(tao)型(xing)星(xing)形(xing)彈(dan)性(xing)聯(lian)軸(zhou)器(qi)
LXT接中(zhong)間套(tao)型(xing)星(xing)形(xing)彈(dan)性(xing)聯(lian)軸(zhou)器(qi)是我廠(chang)按(an)JB/T10466-2004標(biao)準(zhun)生產(chan)的彈性聯軸(zhou)器(qi),該(gai)星(xing)形(xing)彈(dan)性(xing)聯(lian)軸(zhou)器(qi)具(ju)有(you) 的緩沖和(he)減振(zhen)的功(gong)能,特別適(shi)合泵、風機(ji)等(deng)這(zhe)類(lei)中(zhong)等載荷設(she)備與(yu)電機(ji)的聯接。中(zhong)間套(tao)使(shi) 換(huan)聯(lian)軸(zhou)器(qi)彈性墊(dian)不(bu)用移動設(she)備,變(bian)得 加方(fang)便。

LXT型(xing)接(jie)中(zhong)間套(tao)星(xing)形(xing)彈(dan)性(xing)聯(lian)軸(zhou)器(qi)基(ji)本(ben)參(can)數(shu)和(he)主要尺(chi)寸(cun)(JB/T 10466-2004) (單位(wei):mm)
| 型號 | 公(gong)稱(cheng)轉矩/N.m | 軸(zhou)孔直徑(jing)d1、d2 | 軸孔長(chang)度(du)L | D | D1 | D2 | Amin | B1 | B2 | S | 質量m/kg | ||
| Y型(xing) | J1型(xing) | Amin時(shi) | 每(mei)增加(jia)1m | ||||||||||
| LXT3 | 200 | 10、11 | 25 | 22 | 65 | 48 | 100 | 30 | 15 | 9.5 | 2.5 | 3.65 | 0.42 |
| 12、14 | 32 | 27 | |||||||||||
| 16、18、19 | 42 | 30 | |||||||||||
| 20、22、24 | 52 | 38 | |||||||||||
| 25、28 | 62 | 44 | |||||||||||
| LXT4 | 400 | 12、14 | 32 | 27 | 80 | 66 | 115 | 40 | 18 | 9.5 | 3 | 5.51 | 0.7 |
| 16、18、19 | 42 | 30 | |||||||||||
| 20、22、24 | 52 | 38 | |||||||||||
| 25、28 | 62 | 44 | |||||||||||
| 30、32、35、38 | 82 | 60 | |||||||||||
| LXT5 | 560 | 14 | 32 | 27 | 95 | 75 | 140 | 50 | 20 | 11 | 3 | 10 | 0.76 |
| 16、18、19 | 42 | 30 | |||||||||||
| 20、22、24 | 52 | 38 | |||||||||||
| 25、28 | 62 | 44 | |||||||||||
| 30、32、35、38 | 82 | 60 | |||||||||||
| 40、42 | 112 | 84 | |||||||||||
| LXT6 | 630 | 16、18、19 | 42 | 30 | 105 | 85 | 150 | 50 | 21 | 11 | 3.5 | 12.4 | 1.05 |
| 20、22、24 | 52 | 38 | |||||||||||
| 25、28 | 62 | 44 | |||||||||||
| 30、32、35、38 | 82 | 60 | |||||||||||
| 40、42、45、48 | 112 | 84 | |||||||||||
| LXT7 | 800 | 20、22、24 | 52 | 38 | 120 | 98 | 175 | 70 | 22 | 15 | 4 | 18.6 | 1.25 |
| 25、28 | 62 | 44 | |||||||||||
| 30、32、35、38 | 82 | 60 | |||||||||||
| 40、42、45、48、50、55 | 112 | 84 | |||||||||||
| LXT8 | 900 | 22、24 | 52 | 38 | 135 | 115 | 190 | 70 | 26 | 15 | 4.5 | 25.1 | 1.42 |
| 25、28 | 62 | 44 | |||||||||||
| 30、32、35、38 | 82 | 60 | |||||||||||
| 40、42、45、48、50、55、56 | 112 | 84 | |||||||||||
| 60、63、65 | 142 | 107 | |||||||||||
| LXT9 | 2000 | 30、32、35、38 | 82 | 60 | 160 | 135 | 215 | 90 | 30 | 17.5 | 5 | 37.5 | 2 |
| 40、42、45、48、50、55、56 | 112 | 84 | |||||||||||
| 60、63、65、70、71、75 | 142 | 107 | |||||||||||
| LXT10 | 5000 | 40、42、45、48、50、55、56 | 112 | 84 | 200 | 160 | 260 | 90 | 34 | 18.5 | 5.5 | 62.4 | 2.5 |
| 60、63、65、70、71、75 | 142 | 107 | |||||||||||
| 80、85、90 | 172 | 132 | |||||||||||
| LXT11 | 7100 | 50、55、56 | 112 | 84 | 225 | 180 | 285 | 90 | 38 | 23.5 | 6 | 92.3 | 3.2 |
| 60、63、65、70、71、75 | 142 | 107 | |||||||||||
| 80、85、90、95 | 172 | 132 | |||||||||||
| 100 | 212 | 167 | |||||||||||
| LXT12 | 8000 | 60、63、65、70、71、75 | 142 | 107 | 255 | 200 | 330 | 110 | 42 | 24 | 6.5 | 122.1 | 3.6 |
| 80、85、90、95 | 172 | 132 | |||||||||||
| 100、110 | 212 | 167 | |||||||||||
| LXT13 | 10000 | 60、63、65、70、71、75 | 142 | 107 | 290 | 230 | 370 | 110 | 46 | 28 | 7 | 164.3 | 4 |
| 80、85、90、95 | 172 | 132 | |||||||||||
| 100、110、120、125 | 212 | 167 | |||||||||||
| LXT14 | 14000 | 60、63、65、70、71、75 | 142 | 107 | 320 | 255 | 410 | 130 | 50 | 31.5 | 7.5 | 242.8 | 5.2 |
| 80、85、90、95 | 172 | 132 | |||||||||||
| 100、110、120、125 | 212 | 167 | |||||||||||
| 130、140 | 252 | 202 | |||||||||||
| LXT15 | 20000 | 80、85、90、95 | 172 | 132 | 370 | 290 | 460 | 130 | 57 | 35.5 | 9 | 346.5 | 6.2 |
| 100、110、120、125 | 212 | 167 | |||||||||||
| 130、140、150 | 252 | 202 | |||||||||||
| 160 | 302 | 242 | |||||||||||
| LXT16 | 25000 | 85、90、95 | 172 | 132 | 420 | 325 | 520 | 150 | 64 | 37 | 10.5 | 463.2 | 6.6 |
| 100、110、120、125 | 212 | 167 | |||||||||||
| 130、140、150 | 252 | 202 | |||||||||||
| 160、170、180 | 302 | 242 | |||||||||||

唐(tang)山LXT接中(zhong)間套(tao)型(xing)星(xing)形(xing)彈(dan)性(xing)聯(lian)軸(zhou)器(qi) 山東(dong)LXT接中(zhong)間套(tao)型(xing)星(xing)形(xing)彈(dan)性(xing)聯(lian)軸(zhou)器(qi)

JMIIJ中(zhong)間管(guan)膜片聯(lian)軸器(qi)
(1)與(yu)機(ji)組(zu)軸(zhou)系(xi)的匹配 在設(she)計(ji)上...

GJ型夾殼聯軸(zhou)器(qi)
GJ型夾殼聯軸(zhou)器(qi)特點:無(wu)補償...

NGCLZ鼓形(xing)齒式聯軸(zhou)器(qi)
NGCLZ型接(jie)中(zhong)間軸(zhou)帶(dai)制(zhi)動輪鼓形...

SWC350A-1520中(zhong)型萬(wan)向軸(zhou)
結(jie)構特點:
1、萬(wan)向聯(lian)軸(zhou)器(qi)...

